Если цена в объявлении изменится, мы сразу сообщим вам об этом на электронную почту.
Нажимая «Подписаться», вы соглашаетесь с правилами.
продам коттедж, Васютино9 500 000 ₽
15 мар 2025
Дата публикации объявления
Обн. 15 мар 2025
Дата обновления объявления
29 968 ₽/м²
Чистая продажа
Термин "Чистая продажа" означает, что в квартире никто не прописан или
есть куда выписаться и вывезти вещи. Это лучший вариант для покупателя.
Вероятность срыва сделки минимальна.
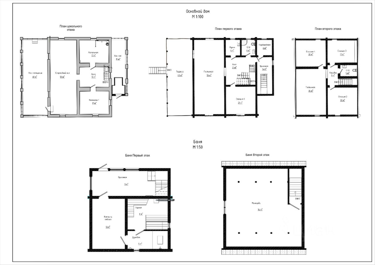
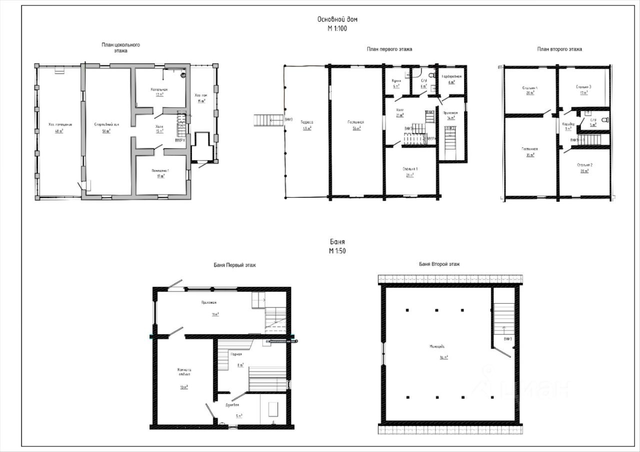
Этажей3
Площадь участка20 соток
Общая площадь317 м2
Материал домадерево
ЭлектричествоЕсть
Газоснабжениецентральное
Вашему вниманию предлагается загородный коттедж их бревна ручной рубки мордовского зимнего леса, сруб 5-ти стенок. Индивидуальный проект, полутораэтажный дом с цокольным этажом общей площадью 317м2, строился для себя с любовью. Кровля металлочерепица. Вода скважина, электричество (сельский тариф), канализация переливной септик, магистральный газ по границе участка (подведение с оборудованием обойдется до 200 тыс. рублей). На первом этаже прихожая с техническим помещением-кладовкой, санузел с душевой, холл, кухня, спальня и огромная гостиная, открытая терасса, на втором этаже санузел и три спальни. В цокольном этаже холл с двумя техническими помещениями одно со скважиной и бойлером, второе свободно, спортивный зал, зимний сад.
Вашему вниманию предлагается загородный коттедж их бревна ручной рубки мордовского зимнего леса, сруб 5-ти стенок. Индивидуальный проект, полутораэтажный дом с цокольным этажом общей площадью 317м2, строился для себя с любовью. Кровля металлочерепица. Вода скважина, электричество (сельский тариф), канализация переливной септик, магистральный газ по границе участка (подведение с оборудованием обойдется до 200 тыс. рублей). На первом этаже прихожая с техническим помещением-кладовкой, санузел с душевой, холл, кухня, спальня и огромная гостиная, открытая терасса, на втором этаже санузел и три спальни. В цокольном этаже холл с двумя техническими помещениями одно со скважиной и бойлером, второе свободно, спортивный зал, зимний сад. На участке две теплицы и бревенчатая баня с гостиной прихожей, отдельно комната отдыха и помывочная. На мансардном этаже так же имеется комната под различные цели. Участок и дом оформлены. Имеется две теплицы, а так же хорошая просторная хозяйственная постройка. Участок крайний к лесу, уединенное,тихое место, рядом церковь, скромные соседи, в шаговой доступности водоем чистый для купания, есть магазин в деревне, удобно добираться своим ходом. Показ по предварительной договоренности. Поможем с ипотекой, рассмотрим все варианты оплаты сертификатами.