Если цена в объявлении изменится, мы сразу сообщим вам об этом на электронную почту.
Нажимая «Подписаться», вы соглашаетесь с правилами.
продам дом, Гризодубовой, 7б21 880 000 ₽
18 авг
Дата публикации объявления
Обн. 15 сен
Дата обновления объявления
25
Количество просмотров (+ просмотры за сегодня)
112 784 ₽/м²
Чистая продажа
Термин "Чистая продажа" означает, что в квартире никто не прописан или
есть куда выписаться и вывезти вещи. Это лучший вариант для покупателя.
Вероятность срыва сделки минимальна.
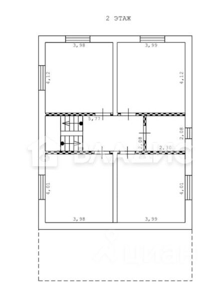
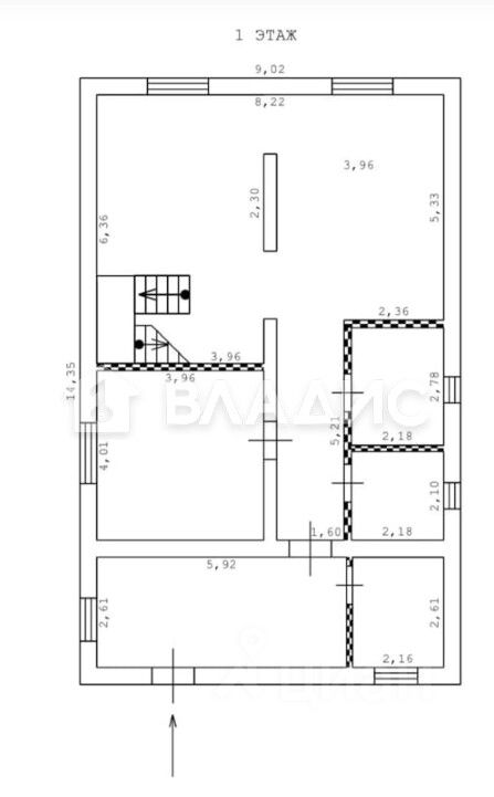
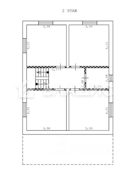
Этажей2
Площадь участка7 соток
Общая площадь194 м2
ЭлектричествоЕсть
Газоснабжениецентральное
Код объекта: 1738115. Описание
НОВЫЙ ДОМ С РЕМОНТОМ И ГАЗОМ под ключ, заехал и живи. Продажа от застройщика подходит под СЕМЕЙНУЮ ИПОТЕКУ ипотеку.
Дом большой и удобный 194 кв.м. на участке правильной формы 7 соток. Полностью огорожен забором, ворота, калитка, залита въездная группа на две машины.
Дoм: 1 этаж кухня-гостиная, спальня, санузел , коридор, бойлерная, прихожая, гардеробная, кладовка. 2 этаж коридор, санузел ,4 спальни. В доме теплый пол. Дом стоит на монолитной плите, стены газосиликатных блок толщиной 400, утеплитель, отделка кароед, крыша металлочерепица. Между 1 и 2 этаж монолитная бетонная плита. Вокруг дома отмостка, сделана ливневка.
Коммуникации: Заведено 15кВт.
Код объекта: 1738115. Описание
НОВЫЙ ДОМ С РЕМОНТОМ И ГАЗОМ под ключ, заехал и живи. Продажа от застройщика подходит под СЕМЕЙНУЮ ИПОТЕКУ ипотеку.
Дом большой и удобный 194 кв.м. на участке правильной формы 7 соток. Полностью огорожен забором, ворота, калитка, залита въездная группа на две машины.
Дoм: 1 этаж кухня-гостиная, спальня, санузел , коридор, бойлерная, прихожая, гардеробная, кладовка. 2 этаж коридор, санузел ,4 спальни. В доме теплый пол. Дом стоит на монолитной плите, стены газосиликатных блок толщиной 400, утеплитель, отделка кароед, крыша металлочерепица. Между 1 и 2 этаж монолитная бетонная плита. Вокруг дома отмостка, сделана ливневка.
Коммуникации: Заведено 15кВт., своя скважина 70 метров, установлен скважинный насос, ГАЗ заведен в дом и все отапливается ГАЗОМ. На участке свой септик. АСФАЛЬТОВЫЙ подъезд к дому , дом огорожен забором, откатные ворота и калитка.
Инфраструктура: Адрес: г. Жуковский, ул. Гризодубовой, д. 7Б. Рядом метро Котельники (20 мин. на авто) и станции D3 Ильинская, Отдых. Инфраструктура г. Жуковского в шаговой доступности. Хороший круглогодичный подъезд (два подъезда: со стороны СНТ через ул. Гризодубовой и дороги со стороны ул. Садовая). Школа в 300 метрах, детские сады, магазины.
Поможем с одобрение ипотеки, ответим на все вопросы. Без обременений. Возможен торг на определенных условиях.