Дом, Солнечное-2 садовое товарищество, 162 Показать на карте
20-4 кв-л
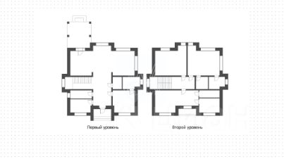
Номер лота: нп-0020913.''Дом ТЕХНОНИКОЛЬ в Коттеджном поселке Леоново-2''.Коттеджный поселок ''Леоново-2''от крупнейшего загородного девелопера ''Истринская долина''. Это вторая очередь Коттеджного поселка ''Леоново'', первая очередь раскуплена полностью и жители уже в полном объеме получают радость и комфорт от проживания в этих живописных местах. ''Истринская долина'' объединяет более двух десятков поселков у Истринского водохранилища на площади свыше 1700 гектаров. Преимущества локации:60 км или 1 час езды от МКАД по Волоколамскому, Новорижскому шоссе 10 минут на машине до г. Истра и Ново-Иерусалимского Монастыря.Поселок примыкает к большому лесному массиву, где много грибов и ягод. В 10ти минутах на машине можно добраться до пляжей Истринского водохранилища.Живописные рельефные участки и прогулочная территория вдоль реки Раменка.Инфраструктура Коттеджного поселка:Элетричество в поселке: 15КВт Газ по границе поселкаВнутрипоселковая дорога - асфальтовая крошкаКруглогодичный подъезд, дороги чистятся.Выездная группа в Коттеджный поселок (2023г)Охраняемая территория (2023г)У Вас будет возможность пользоваться всеми преимуществами Истринской долины:центр активного отдыха Zorino,центр водных видов спорта ''Веселый Ветер'' на берегу Истринского водохранилищаконно-спортивный клуб, где можно будет заниматься выездкой и конкуром, обучать детей и просто отлично проводить время.О доме Вашей мечты: Двухэтажный энергоэффективный каркасный ДомТехнониколь, под чистовую отделку площадью 102.04 м2 на участке 10 соток.Первый этаж SIMPLEX 100-3 очень функционален и удобен, здесь все под рукой и выдержано в скандинавском стиле. Две просторные спальни, санузел и большая кухня-гостиная с витражным остеклением и выходом на террасу - здесь всегда будет много света.Второй этаж этого дома - полет твоей фантазии. 41,06 м?, которыми можешь распорядиться так, как придумаешь только ты! Это может быть музыкальная или фотостудия, мастерская, место для частых вечеринок, домашний кинотеатр, рабочий кабинет, тренажерный зал Никаких ограничений: под ногами первый этаж собственного дома, над головой - только небо.В доме есть все условия для жизни: Фундамент - утепленная шведская плита со всеми выводами под коммуникации и уже встроенным теплым полом. Деревянный каркас возведен строго по технологии ''Дом ТЕХНОНИКОЛЬ'', придавая этому дому всю гамму уютного и комфортного круглогодичного проживания в современном, надежном и энергоэффективном доме.В дом введены водоснабжение (собственная скважина) и канализация (септик). И подключено электричество. Смонтирована система отопления. (Вы сможете приступить к отделочным работам и обустройству дома в любую погоду) Обеспечен удобный подъезд к дому.Дом полностью готов к внутренней отделке. Дом имеет технический паспорт независимого технадзора, проводимого на всех этапах строительства от Компании ''ДомТЕХНОНИКОЛЬ''.
102 м2
2 этажа
- Показать контакты
- Добавить в избранное
102 м2
2 этажа
5 000 000
48 828 /м2
